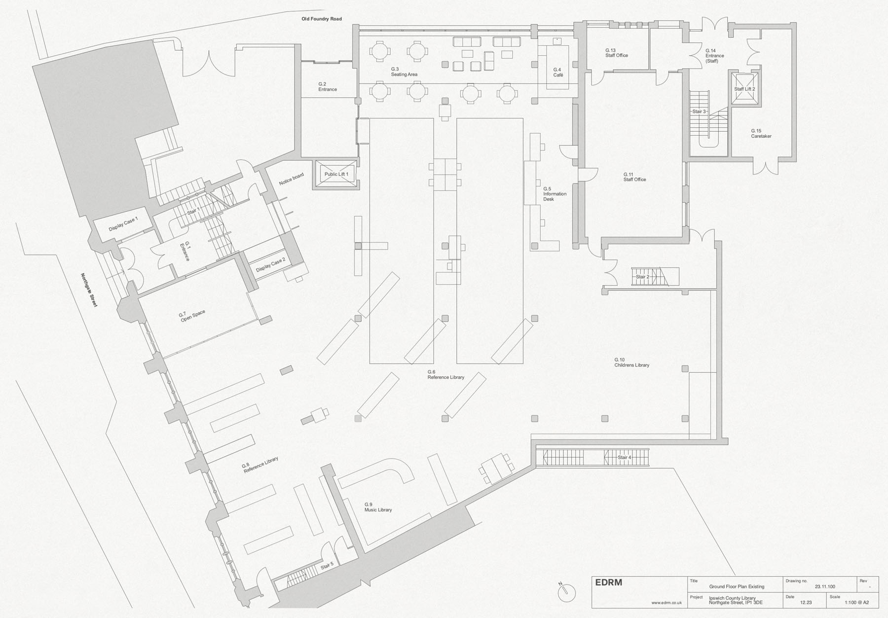
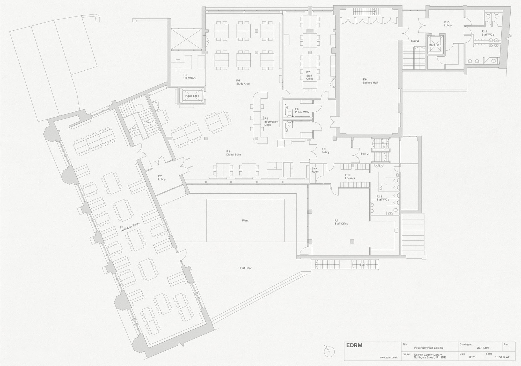
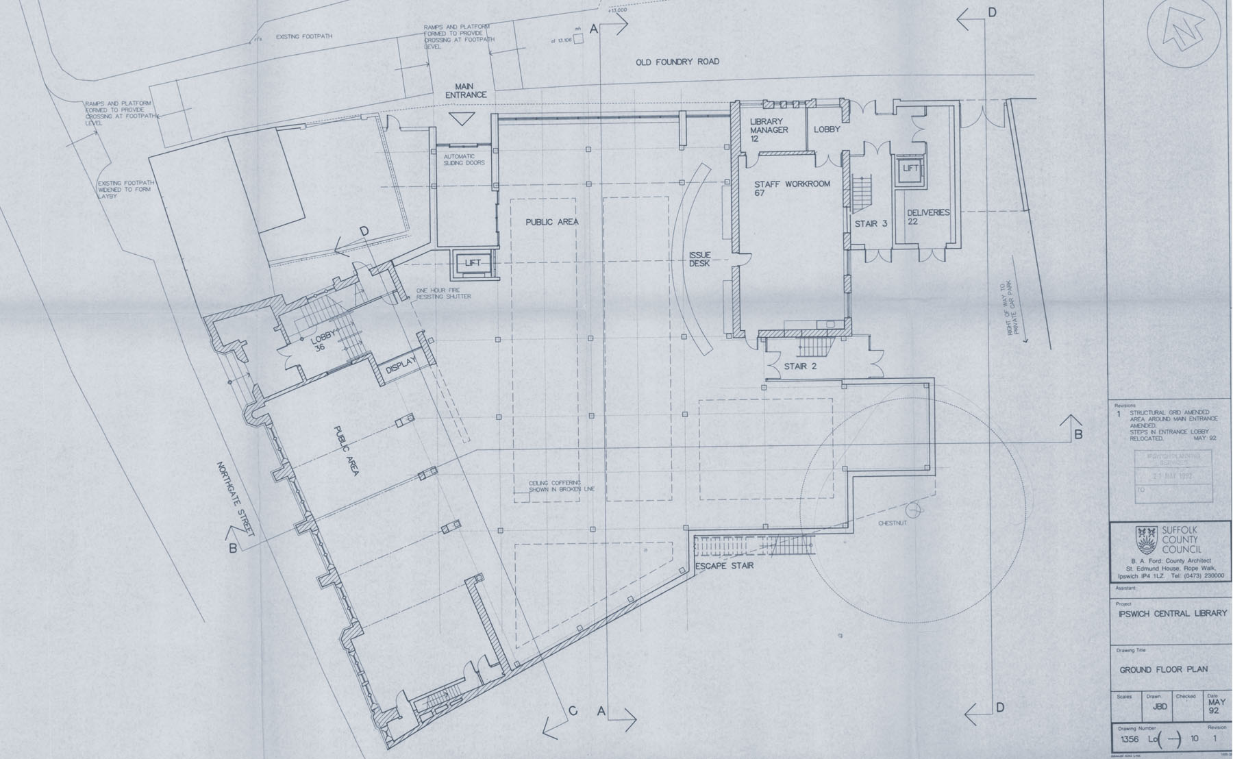
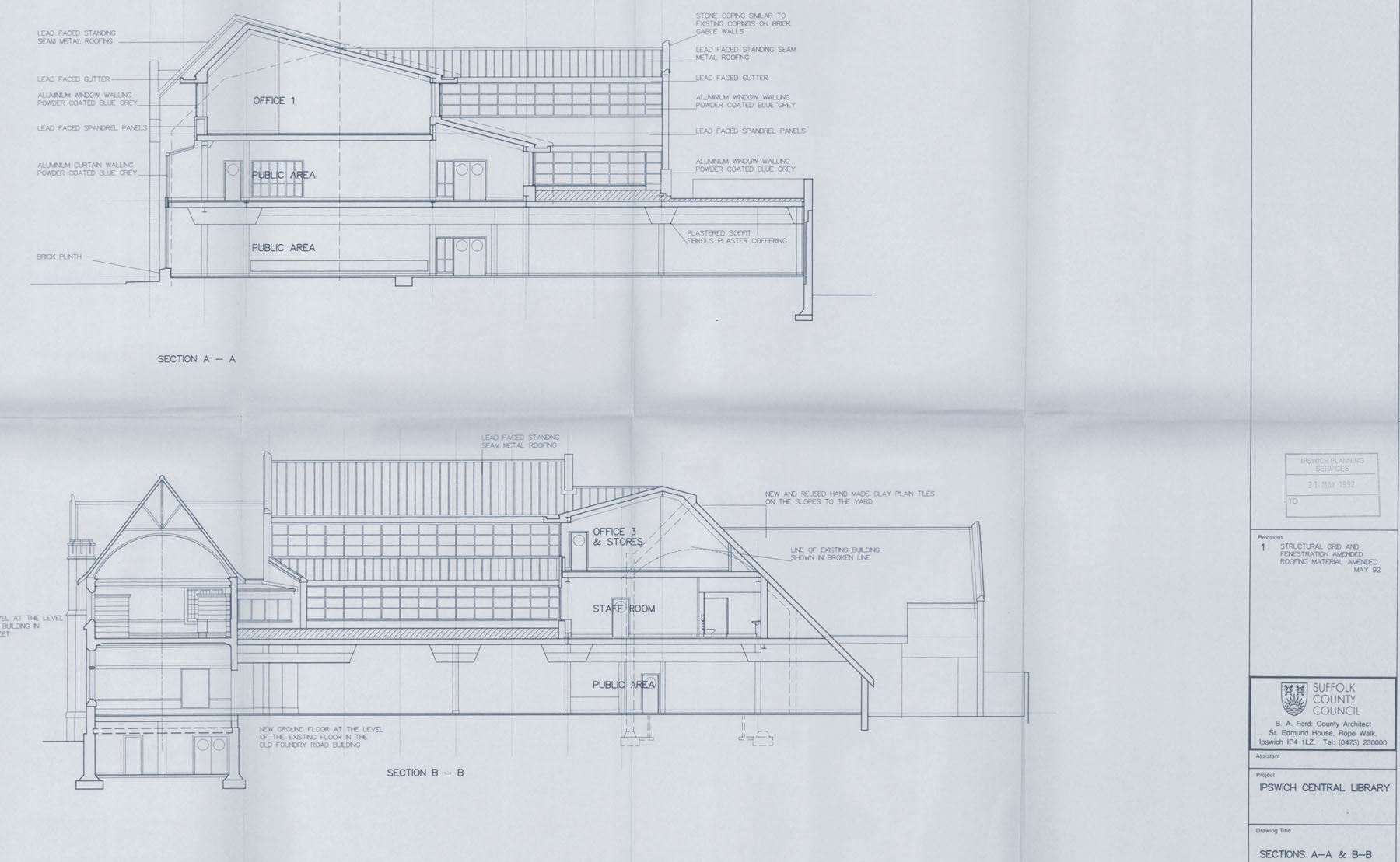
Ipswich County Library

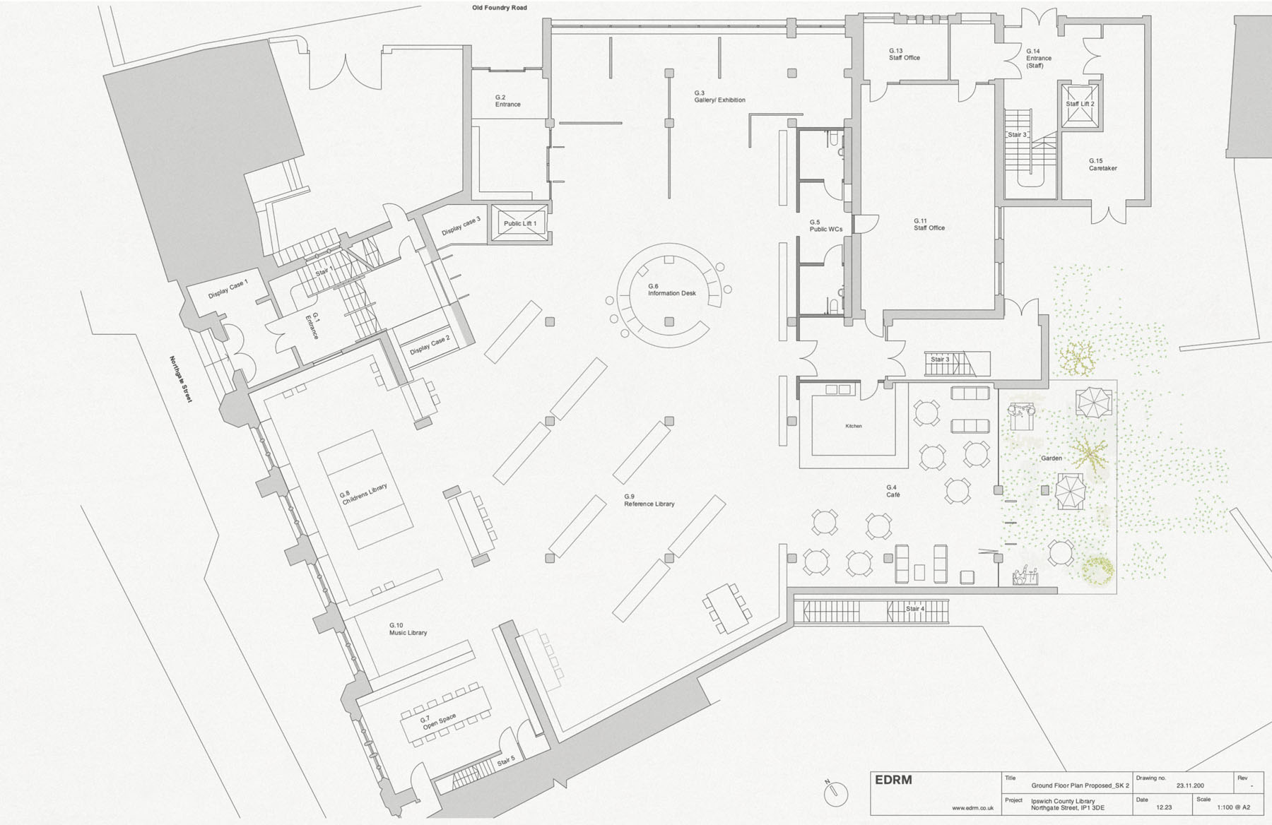
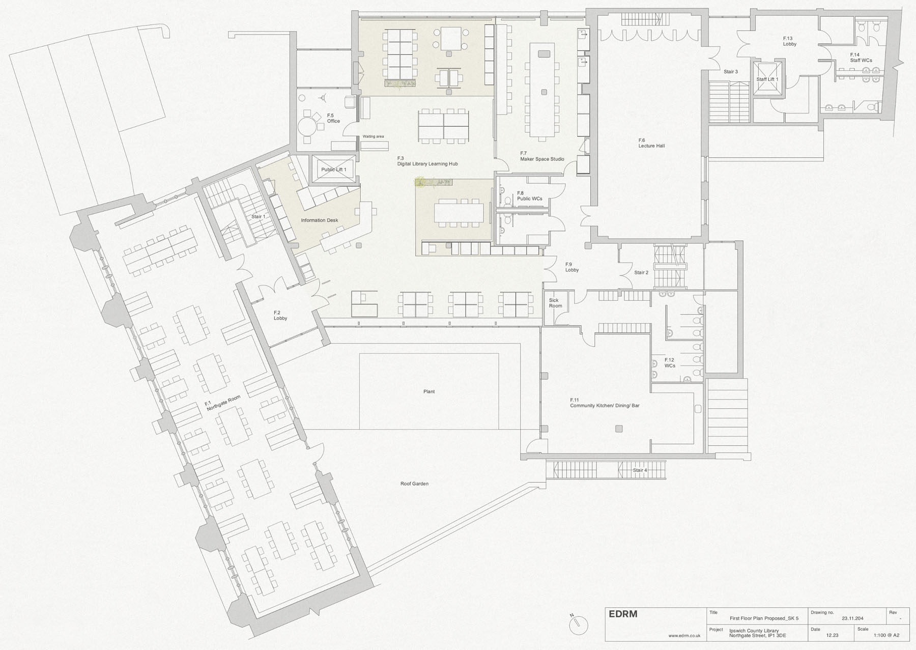
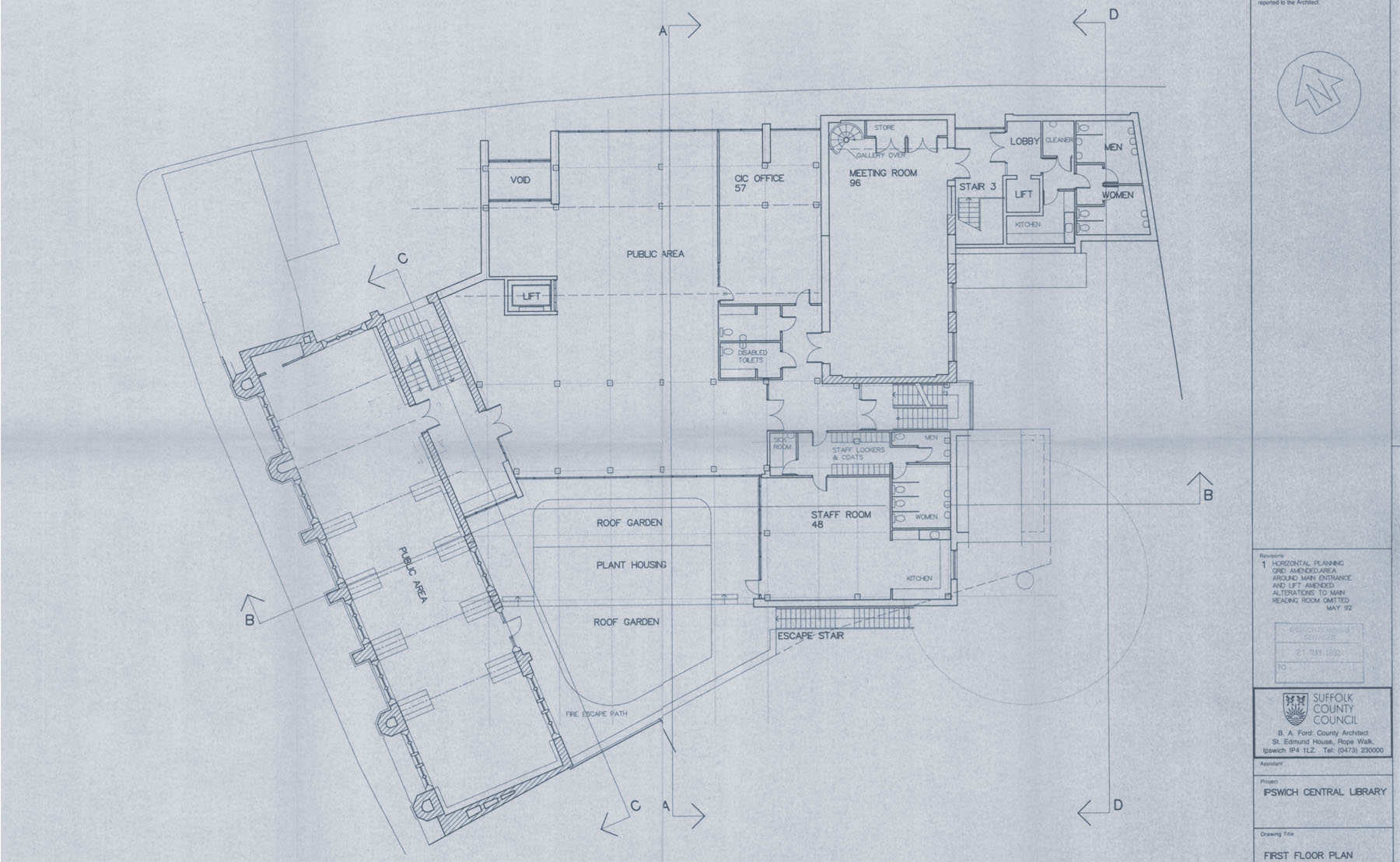
EDRM were appointed by Suffolk Libraries to undertake a ‘light-touch’ feasibility study of the ground and first floors at Ipswich County Library, with a particular focus on the creation of a new digital library learning hub and maker space.

back to top